1. Главная страница
  2. Портфолио дизайн интерьеров
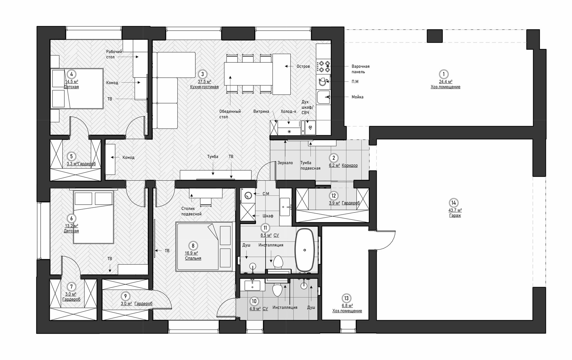
  3. Загородный дом, 180 м2

Загородный дом, 180 м2

social

*Instagram принадлежит компании Meta, признанной экстремистской организацией и запрещенной в РФ